TITULO
CASA ESCÉNICA
FECHA
2022
CATEGORÍA
Reforma
LUGAR
Madrid
CLIENTE
Privado
COLABORADORES
JJ+
EQUIPO
Ángela Sueiro
FOTOGRAFÍA
Amores Pictures
Lewis Carroll escribe en 1865 sobre un mundo surrealista y mágico. Alicia recorre un camino compuesto por una serie de espacios arquitectónicos fascinantes e inusuales que va encontrándose en su aventura por el País de las Maravillas.
La Casa Escénica, un piso de 125 m2 en Madrid, responde a los sueños de una acróbata que imagina un espacio de actuación, una gran mesa donde compartir y un refugio personal.
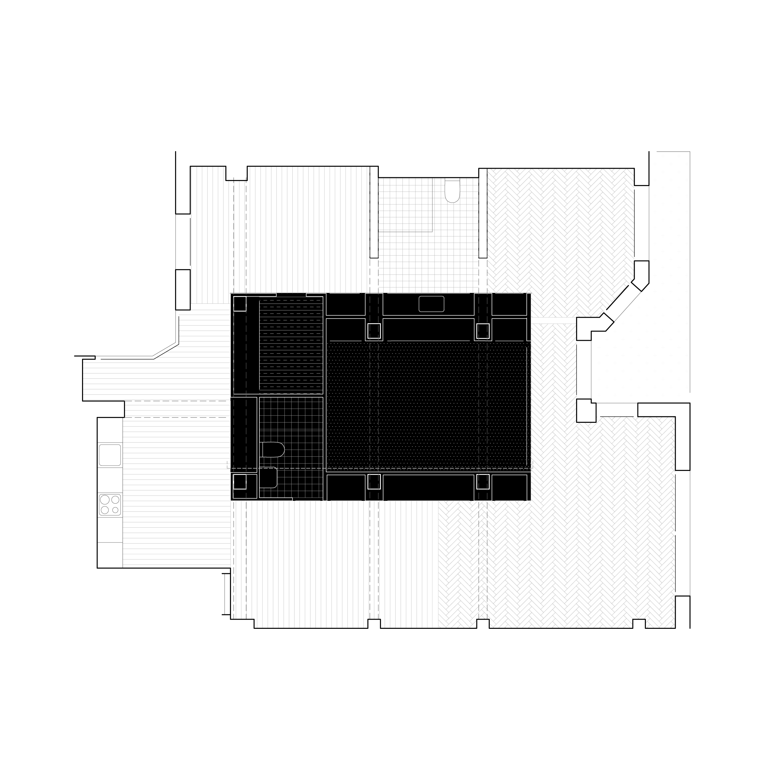
La intervención es clara: equipar la vivienda con un mueble permeable y prismático de 7 por 5 metros y 2,30 de alto, que recoja los pilares de la estructura preexistente. Las vigas pasan intactas sobre la pieza, lacada en RAL 5003, enfatizando así la idea de mueble equipado y diferenciándose de la preexistencia.
El nuevo elemento central estructura una circulación perimetral libre mientras acoge en su interior tres estancias que buscan sorprender al visitante, cada una con estética única:
- Para actuar, un gran escenario flexible, de 3×5 metros que se abre en todo su ancho con una puerta plegable.
- Para compartir, una estancia húmeda que da servicio al gran espacio diáfano en el acceso de la vivienda.
- Para refugiarse, un vestidor aporta intimidad frente a la circulación del dormitorio, sin nexos entre los espacios húmedos que lo anteceden y lo suceden.
Completa el recorrido en torno a la caja el resto del programa: cocina, salón, dormitorio, sala de estudio y baño pasante; como parte de la circulación perimetral, des-jerarquizando la relación tradicional entre espacios.
La Casa Escénica es un espacio diseñado para Alicia. Un espacio doméstico que explora nuevos modelos de vivienda, reivindicando la experiencia y el disfrute más allá de la vivienda convencional, a través de un espacio des-jerarquizado, flexible y multifuncional.
—
In 1865, Lewis Carroll wrote about a surreal and magical world. Alice travels through a path composed of a series of fascinating and unusual architectural spaces that she encounters on her adventure in Wonderland.
The Scenic House, a 125 sqm apartment in Madrid, fulfils the dreams of an acrobat who envisions a performance space, a large table for sharing, and a personal sanctuary.
The intervention is clear: to equip the dwelling with a permeable and prism-like furniture piece measuring 7 by 5 meters and 2.30 meters high, designed to incorporate the pre-existing structural pillars. The beams pass intact over this piece, lacquered in RAL 5003, thus emphasizing the concept of a furnished unit and distinguishing itself from the pre-existing structure.
The new central element structures a free perimeter circulation while it aims to surprise the visitor with its interior spaces, each with a unique aesthetic:
- For performance, there’s a large, flexible stage, 3×5 meters in size, which opens fully with a folding door.
- For sharing, a wet room serves the large open space at the entrance of the dwelling.
- For refuge, a dressing room provides privacy from the bedroom circulation, with no connections between the wet spaces that precede and follow it.
The circulation around the box includes the rest of the program: kitchen, living room, bedroom, study room, and en-suite bathroom; as part of the peripheral circulation, de-prioritizing the traditional relationship between spaces.
The Scenic House is a space designed for Alice. It is a domestic space that explores new housing models, advocating for the experience and enjoyment beyond conventional housing, through a non-hierarchical, flexible, and multifunctional space.
—
PUBLICACIONES
>neo2
>divisare
>metalocus
>ur design
>archdaily
>room diseño
>design wanted
>gooood
>designverse
>archisearch
>dwell
>archilovers
>archello
>interiors korea