Ana y Luis buscaban la manera de reformar su vivienda con un objetivo claro: obtener grandes espacios adaptables, flexibles y con luz natural.

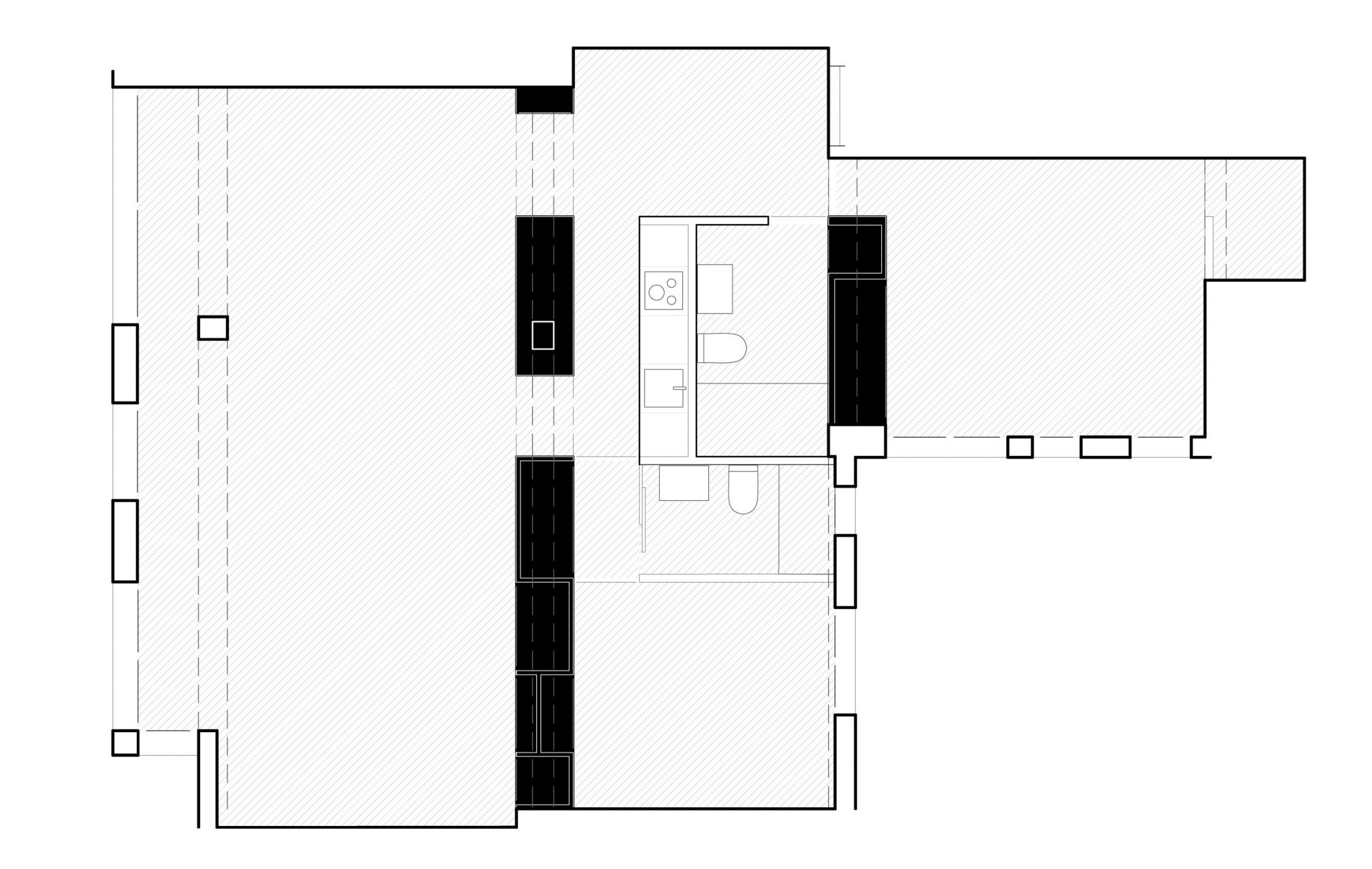
El proyecto A dos bandas parte de una propuesta rotunda: la construcción de dos muebles equipados que den servicio a grandes espacios libres multifuncionales y flexibles.

Estas piezas programáticas longitudinales, cuya posición viene determinada por la estructura del edificio, equipan los espacios servidos: espacios multifuncionales que permiten y potencian la flexibilidad programática y la conciliación. Las vigas, que parecen apoyar sobre las bandas; así como la materialidad de las piezas (chapado de madera natural), ayudan al visitante a entender rápidamente la intervención.

Entre las dos bandas se ubican todas las estancias húmedas, que a su vez se vinculan con los usos de dormitorio.

El gran espacio de salón-comedor-estudio es el lugar donde la producción doméstica diaria es protagonista. La gran sala, que destaca por su flexibilidad espacial, tan propia de los tiempos post-covid, reivindica su papel de espacio principal, servido por un mueble que da carácter y personalidad a la estancia.

© 2023 JOTAJOTA+Angela Sueiro
Fotografía de Amores Pictures